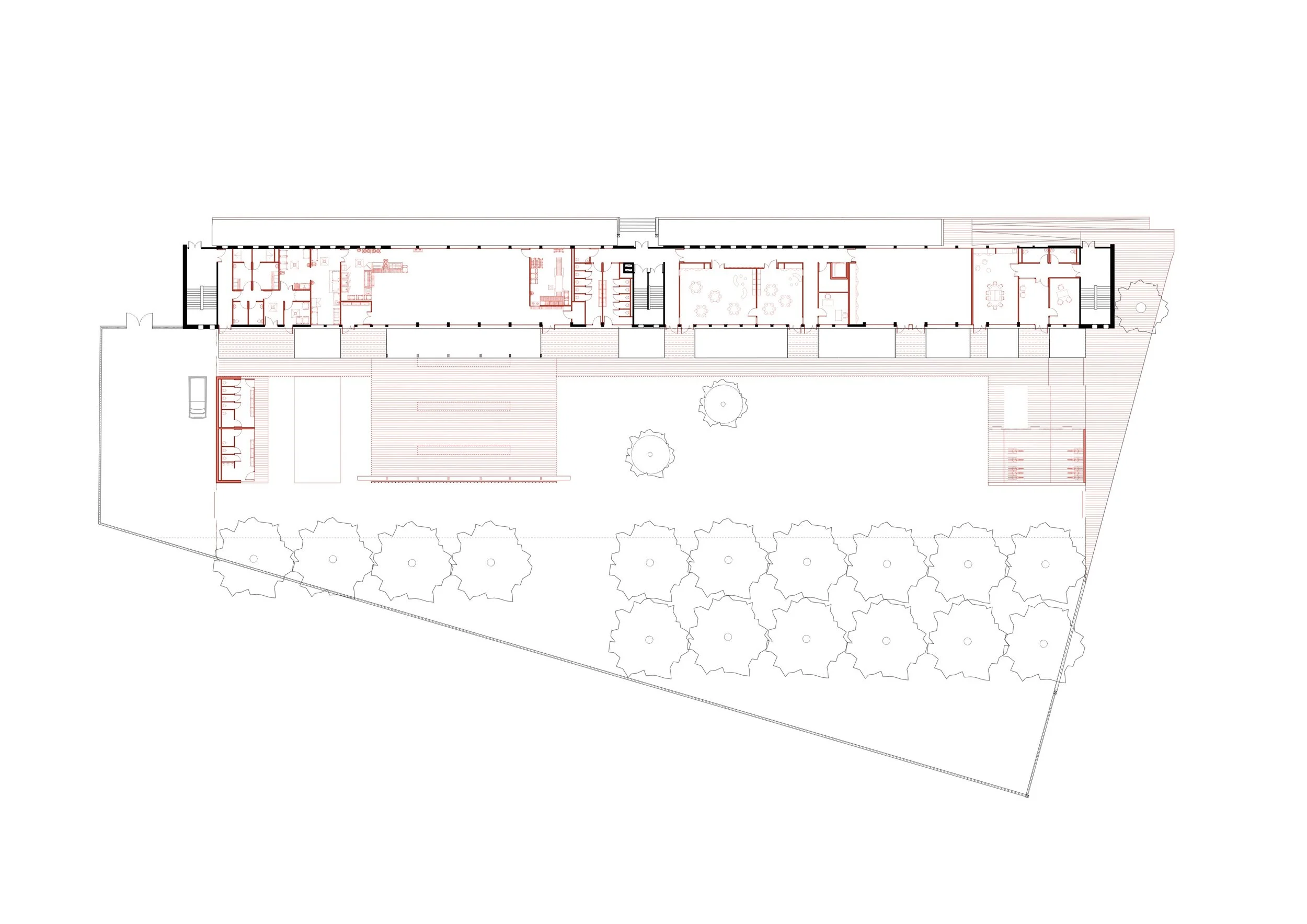
Groupe Scolaire - Léo Lagrange

  • Programme : Restructuration complète du bâtiment + Création d’un préau et sanitaires extérieurs.

    Localisation : Toulouse (31)

    Calendrier : Livraison 2025

    Surface : 1 400m2

    Coût : 2 600 000€

    Label / Certificat : BEPOS+ ; RE2020 ; HQE ; BIM

  • Architectes Mandataires : LSD

    Architecte Associé : atelier BHN

    BET TCE : OTE

    BET Cuisine : DM CUISINE

    Economiste de la construction : DANOBAT

Précédent
Précédent

Groupe Scolaire - Civrac de Blaye

Suivant
Suivant

Maison des générations - Eysines